
Informacje ogólne
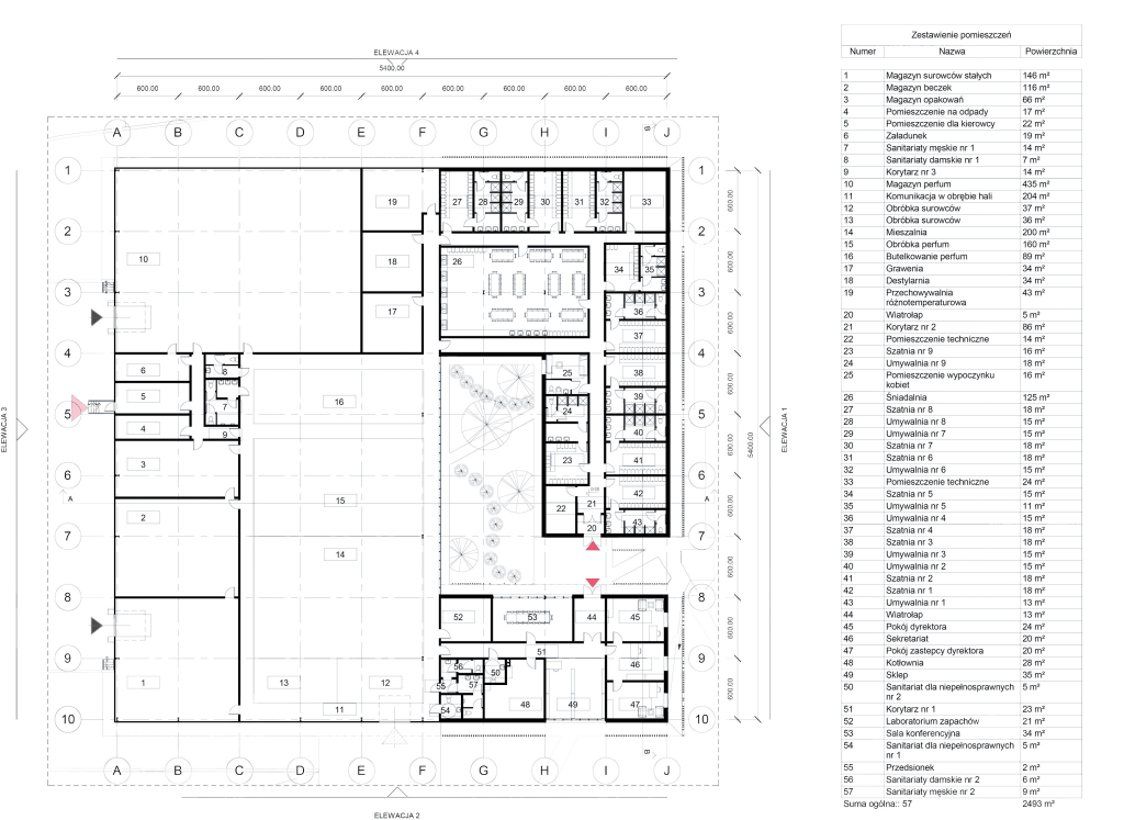
Projektowana perfumeria zlokalizowana jest w Poznaniu przy ul. Sycowskiej. Budynek ma stanowić wizytówkę firmy tworząc miejsca pracy w otoczeniu terenów zielonych. Głównym założeniem projektu jest zorganizowanie miejsc pracy w taki sposób aby przez kontakt z naturą człowiek mógł osiągnąć jak największy spokój i komfort, co może wpłynąć na wzrost efektywności pracy. Pomieszczenia związane z bezpośrednim wytwarzaniem perfum posiadają duże przeszklenia z otwarciem na zielone wnętrze.
- autor: Małgorzata Kocerka-Kaźmierczak,
- prowadzący: dr hab. inż. arch. Jerzy Suchanek,
- Politechnika Poznańska, Wydział Architektury,
- czerwiec 2017r.
Rzut i elewacje



